Home Models: Chalet

Chalet Home
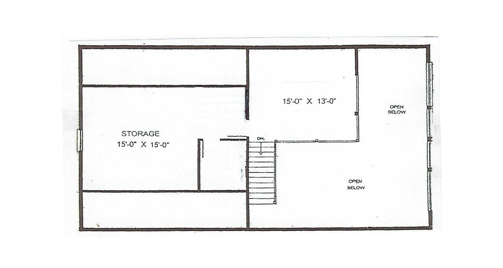
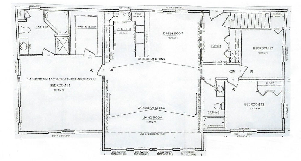
Chalet Home Model floor plan
Chalet Home Model floor plan

Our Chalet Home Model features a retaining wall, prow roof, a wrap-around porch and deck combo, brick wall front on the walk-out basement, finished with beautiful cedar siding.

Additional Features Shown:

  • Anderson windows
  • 6' sliding doors
  • customized decks and porches
  • true vaulted ceilings
  • post & baluster railing
  • trap windows
  • fan box/block

1248 Sq. Ft.

Your image
Your image
 

Home Models: Ranch

Image caption
Your image

Our Ranch Home Model features rustic log siding, fitted with trap/awning windows, and a reverse roof pitch dormer for cathedral ceilings and a spacious interior floor plan.

Additional Features Shown:

  • Cathedral reverse pitch
  • Hardwood floors
  • Fan box/block
  • Wood interior trim

1772 Sq. Ft.

Your image
Your image
Your image
Your image
Your image
Your image
Your image
 

Home Models: Cape

Image caption
Cape Model floor plan

Our Canton Cape Home Model features equal design elevations, multiple doghouse dormers, window box design with extra long shutters, half-round & picture windows in large dormers.

Additional Features Shown:

  • Size options
  • Windows with gills
  • Oval deco glass front door
  • Side garage entry to code

1456 Sq. Ft.

Your image
Your image
Your image
Your image
Your image
Your image
Your image